4TH PRIZE

COMMUNAL MIDDLE ZONE OF THE SCHOOL

SCHOOL AND KINDERGARDEN
Menzingen, Switzerland
2025

Collaboration: Studio Zaluska + Gilbert Berthold
Type of Procurement: Preselected competition, 2025 – 4th prize
Location: Menzingen, Zug, Switzerland
Consultants: Building Management: Anja Stammler, Emch+Berger ImmoConsult; Landscape Architecture: Louis Wenger, Kollektiv Nordost; Timber Engineering, Building Physics, Fire Protection: Lukas Wolf, Pirmin Jung; Building Services: Nermin Prasovic, Wirkungsgrad Ingenieure; Visualizations: Robin Archive

The Ochsenmatt school campus extension proposes a compact three-storey timber building placed above an underground parking structure, preserving the park-like character of the existing ensemble and maintaining generous, publicly accessible open spaces. The new building occupies a footprint comparable to the adjacent sports hall and, together with it, defines a network of outdoor spaces for school use and neighbourhood life alike.

The three main programmes — kindergarten, lunch care and primary school — are each assigned a full floor, creating a clear vertical organisation that separates functions acoustically and operationally while keeping them close. Seen from the north, the building steps back into the slope and presents itself as a two-storey pavilion, integrating quietly into the scale of the surrounding residential neighbourhood.

Entrances on three sides and two levels weave the building into its context: a bridge on the east facade connects directly to the plinth of the existing gym and from there to the other school buildings; a ground-level entrance opens toward the sports grounds; and a third access point ties the building to the street above. These carefully placed thresholds make the new structure a connective element within the wider campus rather than a standalone object.

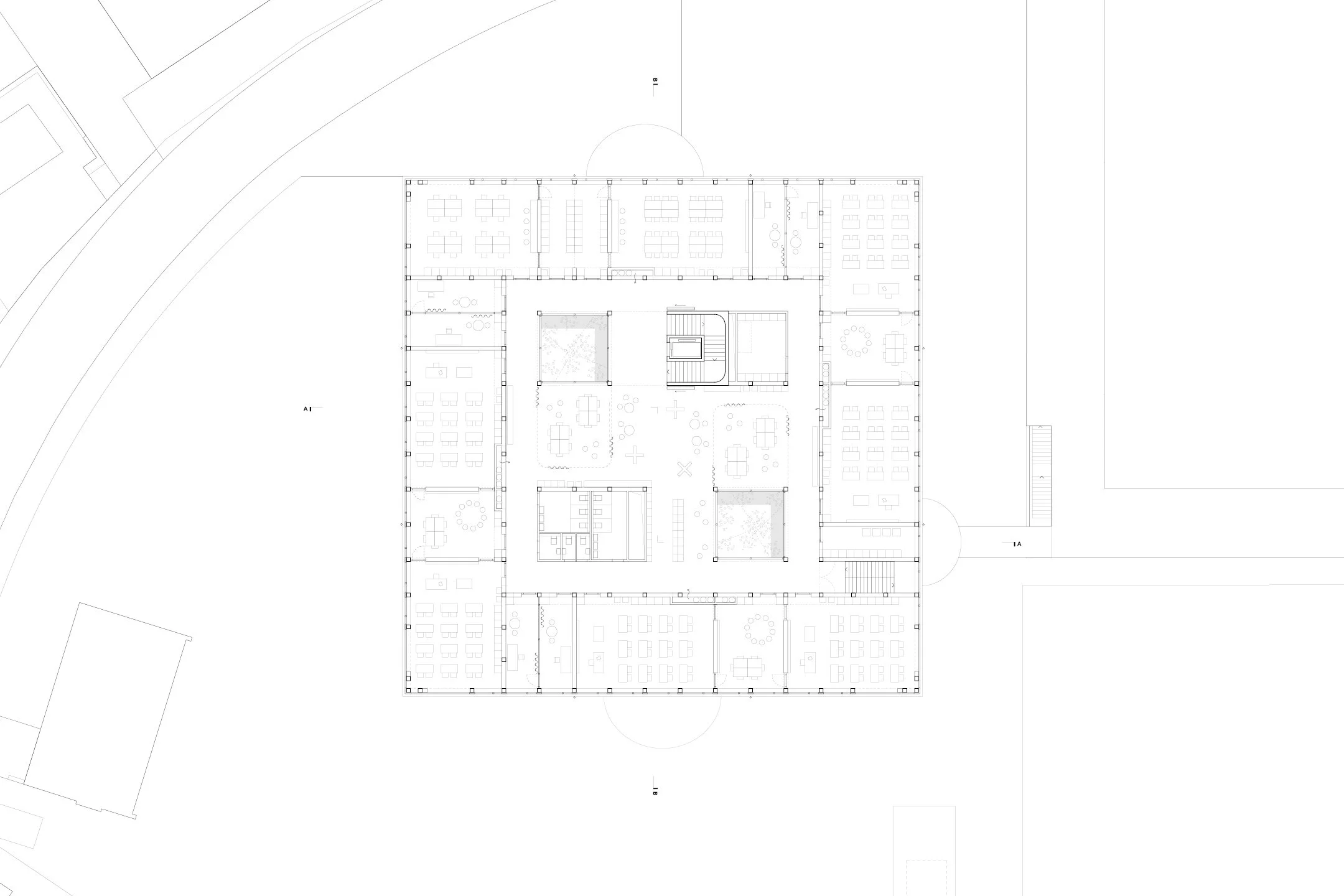
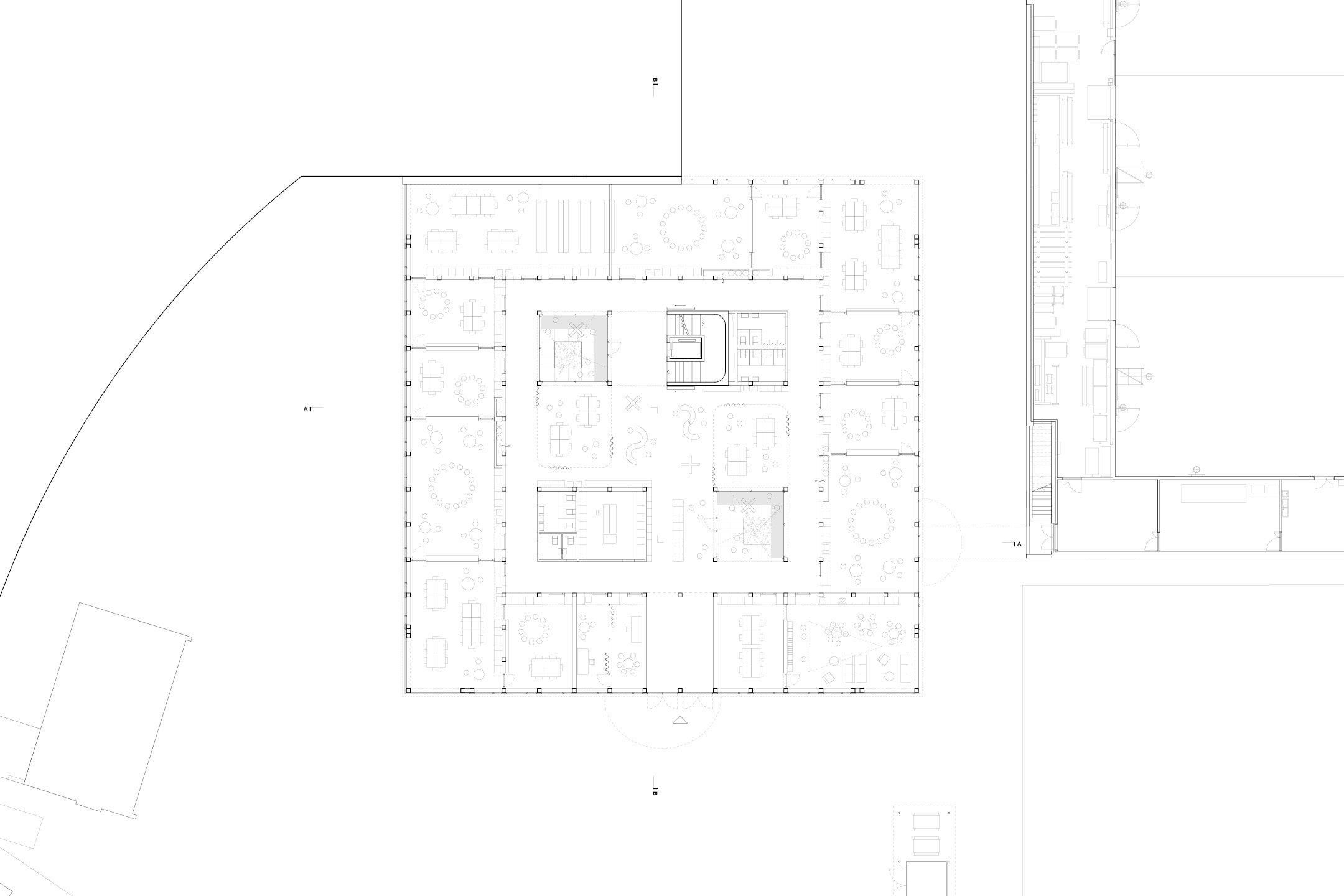
Each floor follows a consistent organisational principle: an open learning landscape at the centre, flanked by classrooms and group rooms arranged in a continuous ring. Two asymmetrically placed light courts draw daylight deep into the building, provide natural ventilation and create moments of spatial orientation. The free middle zone, lit from above, dissolves the conventional corridor into a genuine learning landscape where movement, pause and informal learning coexist. Thick infrastructure walls along the hall perimeter carry services and storage; above them, a continuous ribbon window just below the ceiling reads the ceiling as an uninterrupted surface of exposed timber ribs.

The structural logic is made legible on the facade: exposed timber columns at a 2.70 m rhythm articulate the envelope, while horizontal cladding bands and strip windows emphasise the layered, floor-by-floor reading of the volume. Canopies at the entrance points and the bridge to the gym are the building's most precise gestures, marking access, mediating levels and anchoring the new structure within the existing topography.

The construction meets Minergie-ECO requirements through compact massing, a fully prefabricated timber system, photovoltaic panels across the entire roof and sponge-city principles applied throughout the outdoor spaces. Non-load-bearing interior walls allow the floor plan to evolve without structural intervention, ensuring the building remains adaptable across its entire lifespan.

GROUND FLOOR

1ST FLOOR

2ND FLOOR

SECTION 1

SECTION 2

NORTH FACADE

CAMPUS AXONOMETRY

STRUCTURAL DIAGRAM

Next
Next

ELDERLY HOUSE // SCHIERS // CH